
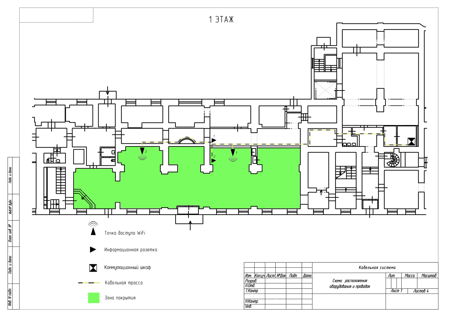
Техническое задание: Организация дополнительной зоны беспроводного доступа посетителей к тематическим ресурсам в сети Интернет в вестибюле музея. Зона Wi-Fi постоянной экспозиции включают в себя кабельную сеть, коммутационное оборудование (управляемые коммутаторы) и оконечное оборудование (точки доступа). Для установки коммутационного оборудования используется коммутационный шкаф в выделеном серверном помещении. Кабельная сеть включает:
- горизонтальные кабельные линии до мест установки точек доступа терминируются с двух сторон экранированными разъемами RJ-45 для прямого подключения оборудования, используя технологию передачи питания PoE;
- кабельные трассы от центра коммутации до места установки информационных розеток;
В местах установки оконечного оборудования кабельные линии терминируются разъемами RJ-45 для непосредственного подключения точек доступа.
Все элементы кабельной проводки должны соответствовать требованиям категории 5е и обеспечивать скорость коммутации не менее 1000 Мбит/сек. Применяются кабели типа «витая пара» 4-парный SFTP (FTP) экранированный категории 5е для подключения всего оборудования; для подключения оконечного оборудования Wi-Fi возможно использование по рекомендации производителя оборудования кабеля типа «витая пара» 4-парный SFTP (FTP) экранированный с дренажным проводником. Кабельные трассы прокладываются над подвесным потолком в трубе ПВХ гофрированной гибкой диаметром 16 мм до 2 кабелей FTP или NYM, диаметром 20 мм до 4 кабелей FTP. Стены – кирпичные толщиной 600мм. Потолок подвесной высотой 5,00 м.
Обоснование применения материалов: Заказчиком были выдвинуты требования на использование материалов и оборудование марки Ubiguiti. В связи с этим проведение монтажа было разбито на 2 этапа:
- Построения каналов передачи данных зоны WiFi. За основу было взято оборудование и материалы марки Ubiguiti (двухдиапазонная (2,4 и 5 ГГц) точка доступа с питанием PoE 48B Ubiquiti UniFi AP Pro, коммутатор гигабитный управляемый с подключением устройств PoE 48 B Ubiquiti TOUGHSwich PoE PRO, маршрутизатор (роутер) Ubiquiti Edge Router Lite, коннектор экранированный RJ-45 Ubiguiti TOUGH Connector, кабель SFTP (FTP) 4*2*0,53 медный экранированный с дренажным проводником кат. 5Е Ubiquiti TOUGHCable Pro). Длина кабеля была рассчитана путем суммарного сложения длин помещений и перекрытий от коммутационного шкафа до мест установки точек доступа, а так же запаса в коммутационном шкафу 3000мм. согласно ГОСТ 53246-2008.
- Построения каналов передачи данных от коммутационного оборудования до мест установки информационных розеток. За основу был взят кабель и информационные розетки марки Hyperline (Hyperline FTP 4*2*0,5 медный кат. 5Е). Длина кабеля была рассчитана путем суммарного сложения длин помещений и перекрытий от коммутационного шкафа до мест установки информационных розеток, а так же вертикальных спусков до коммутационной розетки и запаса в коммутационном шкафу 3000мм. согласно ГОСТ 53246-2008.
Итоговая стоимость 83320 рублей 60 копеек. Далее приложена примерная смета расчетов:
| № | Смета на материалы и оборудование | Кол-во | Ед. | Цена (руб.) | Сумма (руб.) |
| 1 | Трубы гофрированные легкого типа, с зондом, Дн=20 мм. | 34 | м. | 9,80 | 333,20 |
| 1 | Трубы гофрированные легкого типа, с зондом, Дн=16 мм. | 28 | м. | 7,90 | 221,20 |
| 1 | Кабель-канал 16*16 | 10 | м. | 15,20 | 152,00 |
| 2 | КабельSFTP (FTP) 4*2*0,53 медный экранированный с дренажным проводником кат. 5Е Ubiquiti TOUGHCable Pro | 102 | м. | 40,00 | 4080,00 |
| 3 | Кабель Hyperline FTP 4*2*0,5 медный кат. 5Е | 100 | м. | 28,30 | 2830,00 |
| 4 | Маршрутизатор (роутер) Ubiquiti Edge Router Lite | 1 | шт. | 8400,00 | 8400,00 |
| 5 | Коммутатор гигабитный управляемый с подключением устройств PoE 48 B Ubiquiti TOUGHSwich PoE PRO | 1 | шт. | 16000,00 | 16000,00 |
| 6 | Двухдиапазонная (2,4 и 5 ГГц) точка доступа с питанием PoE 48B Ubiquiti UniFi AP Pro | 2 | шт. | 18000,00 | 36000,00 |
| 7 | Коннектор экранированный RJ-45 Ubiguiti TOUGH Connector | 6 | шт. | 21,00 | 126,00 |
| 8 | Патч-корд, FTP, кат.5е 1м серый | 4 | шт. | 52,40 | 209,60 |
| 9 | Коммутационная патч-панель 19" 1U 24*RJ45 экранированная, категория 5е | 1 | шт. | 1272,00 | 1272,00 |
| 10 | Розетка внешняя 1*RJ-45 , категория 5е | 2 | шт. | 68,30 | 136,60 |
| Итого материалы: | 69760,60 | ||||
| № | Работы по установке и настройке | Кол-во | Ед. | Цена | Сумма |
| 1 | Трассировка кабеля | 202 | м. | 10 | 2020,00 |
| 2 | Сверление стен из кирпича или бетона свыше 500мм. | 4 | шт. | 700,00 | 2800,00 |
| 3 | Сверление стен из кирпича или бетона до 250мм. | 2 | шт. | 300,00 | 600,00 |
| 4 | Монтаж гофротрубы | 62 | м. | 40,00 | 2480,00 |
| 5 | Монтаж кабель-канала до 50мм. | 10 | м. | 40,00 | 400,00 |
| 6 | Протяжка кабеля в ПВХ трубе | 180 | м. | 25,00 | 4500,00 |
| 7 | Установка и подключение розетки | 2 | шт. | 100,00 | 200,00 |
| 8 | Кроссирование 1-го порта патч-панели, кросс-панели | 4 | шт. | 40,00 | 160,00 |
| 9 | Тестирование портов | 4 | шт. | 100,00 | 400,00 |
| Итого за работы: | 13560,00 | ||||
| Итого: | 83320,60 | ||||
Срок выполнения данного технического задания 1-3 рабочих дня на каждый этап.
_____________________________
Для получения консультации или вызова инженереа, позвоните нам +7 (812) 458-46-66
почта: info@maykong.ru











.png)

